Feuerschutztüren NovoPorta Premio

Novoferm Feuerschutztüren NovoPorta Premio mit hochwertigem Dickfalz stehen Ihnen in den Brandschutzklassen T30 (EI2 30), T60 (EI2 60) und T90 (EI2 90) für den Inneneinsatz zur Verfügung.

Europäische Zulassung

NovoPorta Premio - die einzige Stahlblechtür mit europäischer Zulassung - zur Erläuterung!

Feuerschutztüren NovoPorta Premio T30 (EI2 30)

Ihre Vorteile im Überblick!

Ein- und zweiflügelige Feuerschutztüren aus Stahl für den Inneneinsatz

Feuerhemmend geprüft nach DIN EN 1634-1 und bauaufsichtlich zugelassen nach DIN 4102

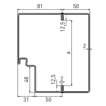
Türblatt dreiseitig gefälzt mit Dickfalz, 64 mm dick, Blechdicke 1,0 mm (optional in 1,5 mm)

Türblatt und Zarge verzinkt und grundiert (pulverbeschichtet) ähnlich RAL 9016

Animation zu Multifunktions-Stahltüren

 

In dieser Animation werden die Highlights und Möglichkeiten von Novoferm Multifunktions-Stahltüren in visuell ansprechender und komprimierter Form vorgestellt.

Weitere Animationen finden Sie unter:

https://www.youtube.com/NovofermVideos

Feuerschutztüren NovoPorta Premio T60 (EI2 60)

Ihre Vorteile im Überblick!

Ein- und zweiflügelige Feuerschutztüren aus Stahl für den Inneneinsatz

Hochfeuerhemmend geprüft nach DIN EN 1634-1 und mit Europäisch Technischer Bewertung (Zulassung) ETA-17/0443

Türblatt dreiseitig gefälzt mit Dickfalz, 64 mm dick, Blechdicke 1,0 mm

Türblatt und Zarge verzinkt und grundiert (pulverbeschichtet) ähnlich RAL 9016

Feuerschutztüren NovoPorta Premio T90 (EI2 90)

Ihre Vorteile im Überblick!

Ein- und zweiflügelige Feuerschutztüren aus Stahl für den Inneneinsatz

Feuerbeständig geprüft nach DIN EN 1634-1 und bauaufsichtlich zugelassen nach DIN 4102

Türblatt dreiseitig gefälzt mit Dickfalz, 64 mm dick, Blechdicke 1,0 mm (optional in 1,5 mm)

Türblatt und Zarge verzinkt und grundiert (pulverbeschichtet) ähnlich RAL 9016

Ausstattungen

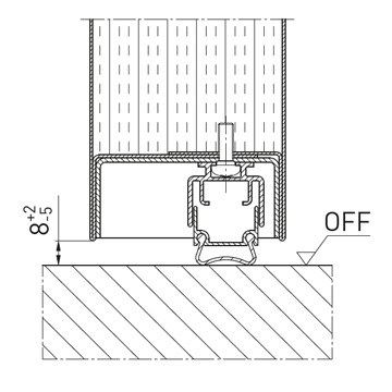
Montage

Bei Wahl der NovoPorta Premio stehen Ihnen verschiedene, durchweg schnelle, einfache und saubere Montageverfahren und Möglichkeiten zur Zargenhinterfüllung zur Auswahl.

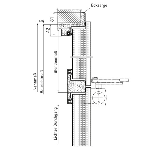
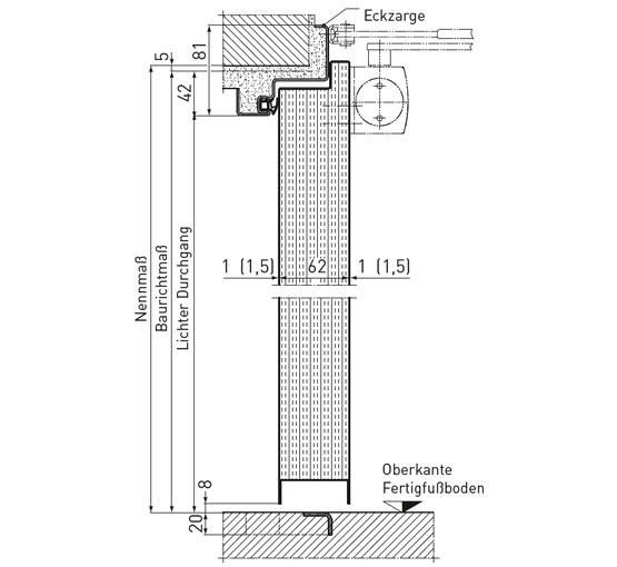
Technik