Stahlzargen

Wohnlich. Belastbar. Individuell.

Starke Zargen, die alles mitmachen.
Sich dauerhaft auf Qualität verlassen zu können, ist nicht nur ein beruhigendes Gefühl, es spart auch langfristig viel Geld!

Wie bei anderen zentralen Punkten der Haustechnik (Heizung, Sanitär, Elektro) so ist auch beim Thema „Türrahmen“ die Qualität das Maß aller Dinge.

Eine gute Stahlzarge ist maßhaltig, hält das Türblatt sicher in Schwung und kann bleiben, auch wenn das Türblatt mal gewechselt wird. „Eine gute Zarge“ heißt bei Novoferm: Sie passt ein für alle Mal, ist robust und stabil und macht im Alltag wirklich alles mit!

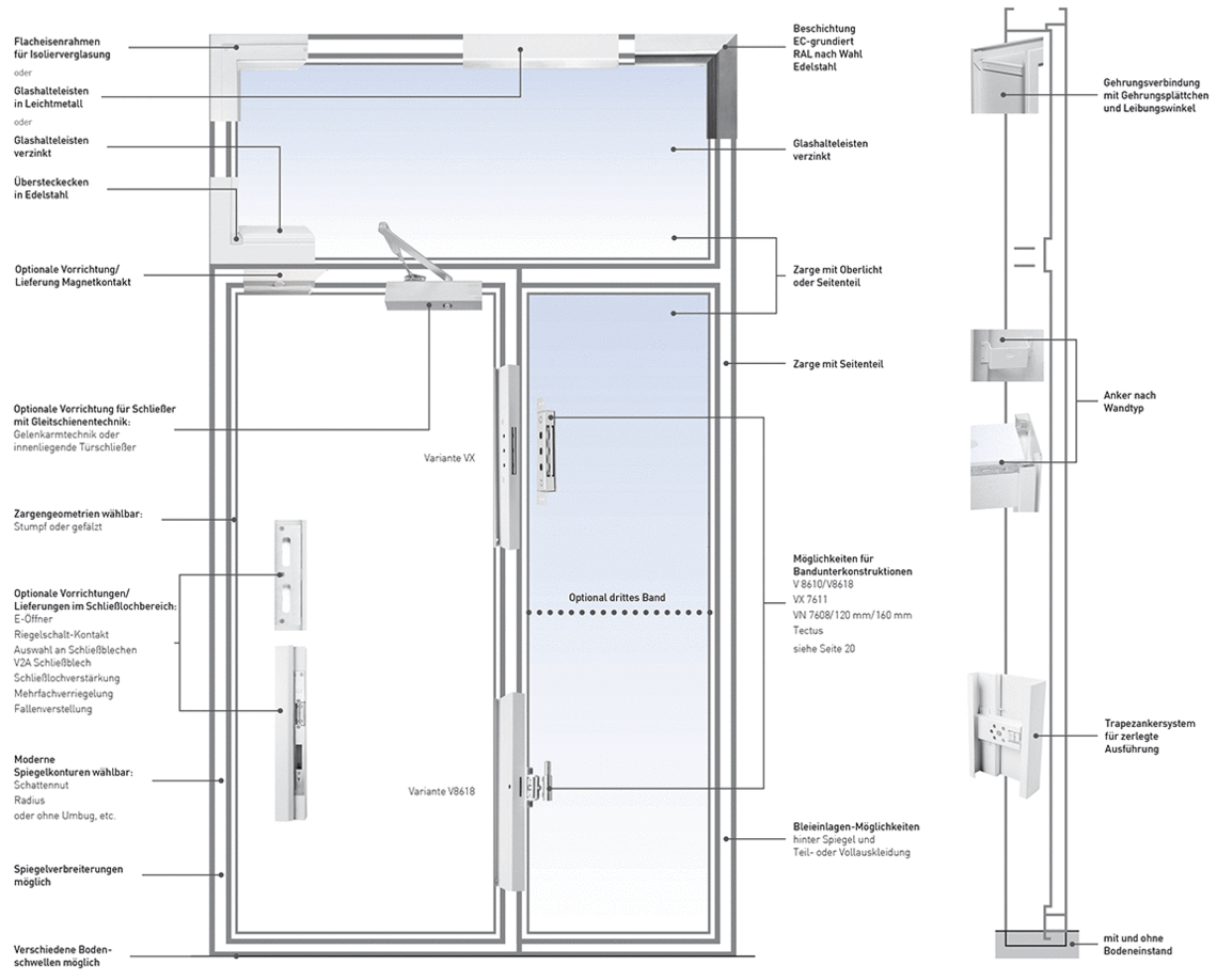
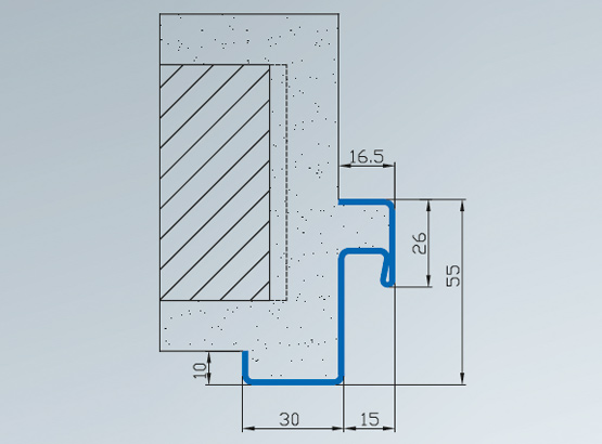
Stahlzarge mit Doppelfalz
Die Vorteile im Überblick:

Hohe Stabilität und Langlebigkeit

Breites Zargen-Spektrum für alle Einbausituationen

Ständerwerk, Mauerwerk und Sonderfälle

Nahezu alle Zargenvarianten auch zerlegt verfügbar

...

Zerlegte Zargen
Highlights

Die Vorteile unserer neuen zerlegten Zargenausführungen werden Ihnen in der Animation hinsichtlich Transport, Handling und Montage veranschaulicht. Der Animation können Sie sich bei Klick auf die Animation auf der linken Seite in visueller Form anschauen.

Zahlreiche weitere Animationen / Videos finden Sie im Novoferm YouTube-Channel:

https://www.youtube.com/user/NovofermVideos

Novoferm Mauerwerkzargen

Grundsolide und wertbeständig – das ist die traditionelle, massive Bauweise. Genauso stabil sind moderne Mauerwerkzargen aus Stahl von Novoferm – ideal passend für alle Türen. Die Novoferm Standard-Zargen (nach DIN 18111) gibt es in vielen Varianten, ausgestattet mit speziellen Systemen zur Aufnahme verschiedenster Bänder.

Novoferm Ständerwerkzargen

Das Leben ändert sich – und mit ihm die Ansprüche an den Wohn- oder Arbeitsraum. Dann gilt es, neue Räume zu schaffen und sich weiter zu entwickeln. Mit Novoferm Ständerwerkzargen kein Problem, denn sie lassen sich in einzigartiger, schneller Leichtmontage einbauen. Zargen von Novoferm sind klassisch stark, innovativ modern und besonders sicher.

Zerlegte Zargen für alle Wandarten

Egal ob Einfachfalz, Doppelfalz, Zierfalz oder Radiuszargen, auf Wunsch sind viele Novoferm Zargenvarianten für eine schnelle Lieferung und einen besonders einfachen und sicheren Transport auch zerlegt verfügbar.

Die bevorrateten Zargenvarianten können innerhalb kürzester Zeit per Paketdienst direkt an den Warenempfänger zugestellt werden. Bei Bestellung vor 11:00 Uhr in der Regel am nächsten Werktag.

Mit dem neuen Trapezanker ist die Montage von zweischaligen Profilvarianten zudem sehr einfach, schnell und sicher.

Optimierte Logistik bei der zerlegten Zarge
Vorteile im Überblick

Zerlegt in drei handliche Einzelteile

Lieferung als kompaktes Paket

Optimaler Schutz gegen Transportschäden

Besonders lagerfreundlich

Einfach im PKW zu transportieren

Schnell und günstig zu versenden

Einfaches Handling auf der Baustelle